|
Oops: Korrekturen und Nachträge zu Ausgabe 5/2016:
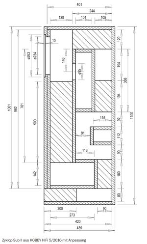
Seite 10 ff.: Den Transmissionline-Subwoofer “Zyklop-Sub II” nachzubauen scheiterte seit
einiger Zeit an dem nicht mehr verfügbaren Tieftöner SW263WA01 von Wavecor. Ursache war der nicht mehr hergestellte Korb, womit die Produktion des Chassis
nicht mehr möglich war. Inzwischen steht der technisch zu 99% identische Nachfolger SW259WA02 zur Verfügung. Unter BErücksichtigung der geringfügig
veränderten Korbmaße (Außen-/Einbaudurchmesser 259 mm/225 mm statt bisher 263/233 mm) ist der Bauvorschlag mit diesem Tieftöner wieder realisierbar. Wegen der größeren Einbautiefe
(146 mm statt bisher 130 mm) muss allerdings der Abstand zwischen Frontplatte und dem dahinter liegenden Teiler um 19 mm vergrößert werden. Damit das Transmissionline-Innenmaß
unverändert bleibt, wird die Frontplatte in ihrer gesamten Höhe (bisher nur im Bereich des Tieftöners) mit 38 mm Stürke ausgeführt. Hier zeigen wir den entsprechend aktualisierten
Schnitt A - A (Klick auf das Bild startet den Download als PDF) aus dem Gehäuseplan. In der Holz-Stückliste ergeben sich diese Anpassungen:
Änderung 2 Seitenwände 1.100 x 439 mm 1 Boden 420 x 282 mm
1 Deckel 401 x 282 mm
Neu: 1 Front-Audopplung 982 x 282 mm
Entfällt: 1 Teiler 321 x 282 mm
 |
Seite 19 und 95: Beim Tieftöner SPH-200CTC von Monacor gerieten die elektrische und die Gesamtgüte
durcheinander: Korrekt sind die Werte in der Liste auf S. 95 mit Qes=0,27 und Qts=0,25. Im Begleittext ist allerdings von einer Resonanzgüte von 0,27 zu lesen (5. Absatz, 2. Zeile), und
dies ebenfalls auf S. 19 (Spalte 1, Absatz 4, Zeile 3). Hier wäre jeweis 0,25 der korrekte Wert.
Seite 58:
Die Spule L2 unseres “Mini-Monitor Basic HP” steht in der Bauteileliste als Luftspule aus 0,5 mm Draht mit 3,9 mH und 2,7 Ohm. Die Firma Mundorf liefert Luftspulen mit diesem geringen
Drahtquerschnitt, allerdings mit 3,5 Ohm Innenwiderstand. In diesem Fall kann eine solche Spule bedenkenlos verwendet werden. Alternativ besteht die Möglichkeit, eine Spule mit 0,7 mm
Drahtquerschnitt zu verwendgen. Aus Mundorf-Fertigung kommt diese auf 1,9 Ohm. Ein Widerstand von 0,68, 0,82 oder 1,0 Ohm in Reihe mit der Spule sorgt dann für den geforderten Widerstand.
Seite 68:
Im letzten Diagramm der linken Diagrammspalte ist der Mittensperrkreis mit L1/C1/R1 bezeichnet. Das trifft aber nicht zu, denn diese Bauteile bilden das Hochpassfilter. Der Mittensperrkreis besteht aus L2, C2 und R2.
|
|